Panlabas na guhit
  • Bahay na Lalagyan ng Istraktura ng Bakal
  • Bahay na Lalagyan ng Istraktura ng Bakal
  • Bahay na Lalagyan ng Istraktura ng Bakal
  • Bahay na Lalagyan ng Istraktura ng Bakal
  • Bahay na Lalagyan ng Istraktura ng Bakal
Mga aplikasyon at benepisyo
  • 1. Maaari itong malayang iangat, ayusin, at pagsamahin.

  • 2. Madaling ilipat, dalhin, at hugasan.

  • 3. Buhay ng serbisyo: 30 taon.

  • 4. Magandang waterproofing, sound insulation, thermal insulation, at ecological environment protection.

  • 5. Ang layout ay isang customized na disenyo.

  • 6. Maaaring gamitin ang mga internasyonal na pamantayan para sa iba pang lalagyan ng kargamento sa dagat.

  • 7. Magandang hitsura na may iba't ibang kulay.

Mga Madalas Itanong
  • Pagkatapos naming ipadala sa iyo ang pagtatanong, gaano katagal bago makatanggap ng tugon?

    Sasagot kami sa iyo sa loob ng 12 oras pagkatapos matanggap ang pagtatanong sa mga karaniwang araw.

  • Ikaw ba ay isang direktang tagagawa o isang kumpanya ng kalakalan?

    Mayroon kaming processing factory at mayroon din kaming sariling international trade department. Kami ay gumagawa at nagbebenta ng aming sariling mga produkto.

  • Anong mga produkto ang maaari mong ibigay?

    Maaari kaming magbigay ng mga container house, Expanded Container House, Folding Container at iba pang produkto.

  • Ano ang mga pangunahing lugar ng aplikasyon na kasangkot sa iyong mga produkto?

    Pangunahing nagbibigay kami ng mga container house para sa residential at office purposes, pati na rin ang mga komprehensibong office building, collective dormitory, at project office container house para sa construction site gaya ng housing construction, subway, municipal engineering, railways, highways, greenery, factory, at schools.

  • Maaari ka bang gumawa ng mga pasadyang produkto?

    Oo, maaari kaming gumawa ng mga pasadyang produkto. Kami ay gumagawa at gumagawa ng mga produkto batay sa mga guhit o sample na ibinigay ng mga customer.

Dayagram ng istruktura
  • Bahay na Lalagyan ng Istraktura ng Bakal
  • Bahay na Lalagyan ng Istraktura ng Bakal
  • Bahay na Lalagyan ng Istraktura ng Bakal
  • Bahay na Lalagyan ng Istraktura ng Bakal
  • Bahay na Lalagyan ng Istraktura ng Bakal
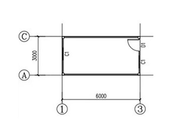
Mga tanawin ng seksyon at plano
  • Bahay na Lalagyan ng Istraktura ng Bakal
  • Bahay na Lalagyan ng Istraktura ng Bakal
Feedback
Tungkol sa Amin
Suzhou Shengshan Prefabricated Housing Manufacturing Co., Ltd
Suzhou Shengshan Prefabricated Housing Manufacturing Co., Ltd
Suzhou Shengshan Prefabricated Housing Manufacturing Co., Ltd Kami ay isang propesyonal na negosyo na dalubhasa sa pananaliksik, pagpapaunlad, produksyon, at pagbebenta ng mga prefabricated steel sheet mobile homes. Taglay ang isang malakas na R&D team at mga taon ng karanasan sa industriya, nagagawa naming bumuo at gumawa ng mga produktong may mataas na kalidad batay sa mga guhit o sample na ibinigay ng customer. Mahigpit na kinokontrol ng aming propesyonal na inspeksyon team ang kalidad upang matiyak na ang bawat produktong lumalabas sa pabrika ay nakakatugon sa mataas na pamantayan. Tsina Bahay na Lalagyan ng Istraktura ng Bakal Mga supplier, tagapagtayo at mga mamamakyaw Bahay na Lalagyan ng Istraktura ng Bakal mga tagaluwas. Suzhou Shengshan Prefabricated Housing Manufacturing Co., Ltd Mahigpit naming sinusuri at ino-audit ang mga supplier ng hilaw na materyales, at nagsasagawa ng mga papasok na inspeksyon at mga pamamaraan sa paghahambing upang matiyak ang kalidad ng hilaw na materyales. Gumagamit kami ng makabagong disenyo at kontrol sa proseso ng produksyon, na ginagawang mas matatag at masusubaybayan ang bawat batch ng mga produkto, na nakakamit ng mahusay na kontrol sa produksyon. Bukod pa rito, mahigpit naming sinusubaybayan ang kalidad ng bawat batch ng mga produkto ayon sa mga pamantayan ng supplier, na tinitiyak ang mahusay na katatagan ng produkto.
Sertipiko ng Karangalan
  • karangalan
  • karangalan
  • karangalan
  • karangalan
  • karangalan
  • karangalan
  • karangalan
  • karangalan
Balita